Dingshi Logistics Office Building

Project Overview

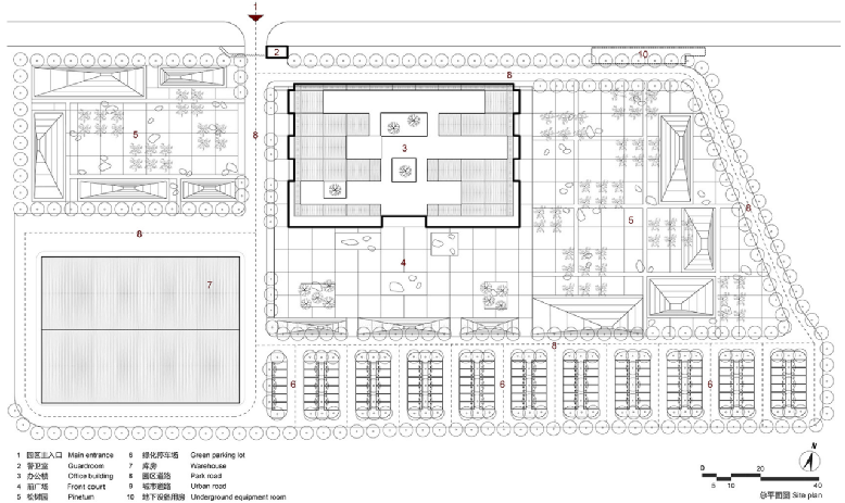
Dingshi Logistics Office Building

This project is located in an industrial workshop area on the outskirts of the city. The park site is open and flat: the office building is planned in the middle of the park, with gardens composed of pine forests, lawns and walkways distributed on the east and west sides, and a wide front square and parking lot reserved on the south side. With relatively relaxed land use conditions, the design organizes the building spatial layout fully around the courtyard relationship, and creates diverse scenarios between the interior and exterior by combining functional needs and circulation paths, so as to build a sunny, green and vibrant working environment.

  • Project location:

    Tang shan

  • Building area:

    4617square meters

  • Time:

    2017

  • Design fee:

    500000RMB

01

This is a garden restaurant hidden in a bustling urban commercial district. The restaurant’s design begins with a tree branch, gradually…

02

The design takes the “super cell” of iFlytek City as a forward-looking concept for the integrated development of industry and city. It is …

03

To create a high-quality office environment where people and nature coexist and integrate harmoniously; an energizing hub that sparks a sense…

04

The project includes the construction of a comprehensive medical building integrating outpatient, emergency medical…