Anren Ancient Town Tourist Center

Project Overview

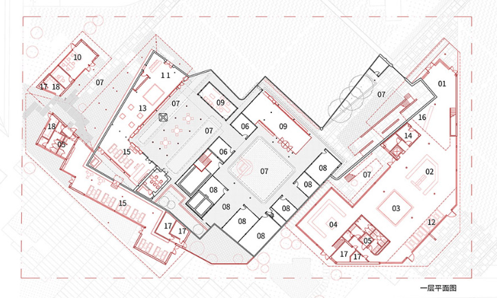
Anren Ancient Town Tourist Center

The Visitor Center of Anren Ancient Town is a renovation and expansion project of Liao Wei Mansion, located on the edge of Anren Ancient Town in southwest Chengdu. Originally a private residence, Liao Wei Mansion now serves as the historical “gene” of the old town. It has become the starting point of the new block, formed a new cluster of “Linpan” (a traditional Sichuan rural settlement with houses surrounded by woods and farmland) spaces, and stands as a research sample for China’s new town development. For design, a rescue-based “disassembled overhaul” was adopted to protect this cultural relic. The expanded part uses steel structures and lightweight materials; though adjacent to the old walls and the original mansion, maximum efforts were made to protect existing building components during and after construction. Besides, based on the layout of the original courtyard complex, the three-courtyard structure was expanded to five, continuing and enhancing the spatial features and architectural style of the sloped-roof building cluster, thus forming an integrated whole of old and new elements.

  • Project location:

    Cheng du

  • Building area:

    2877 square meters

  • Project positioning:

    public service

  • Time:

    2018

  • Design fee:

    450000RMB

01

This is a garden restaurant hidden in a bustling urban commercial district. The restaurant’s design begins with a tree branch, gradually…

02

The design takes the “super cell” of iFlytek City as a forward-looking concept for the integrated development of industry and city. It is …

03

To create a high-quality office environment where people and nature coexist and integrate harmoniously; an energizing hub that sparks a sense…

04

The project includes the construction of a comprehensive medical building integrating outpatient, emergency medical…